ПП 18.5 плиты парапетные
Характеристики изделия:
| Параметр | Значение |
|---|---|
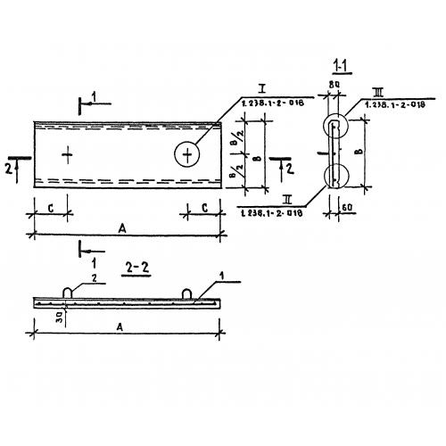
| длина | 1790 мм |
| ширина | 520 мм |
| высота | 80 мм |
| масса | 175 кг |
| нормативный документ | Серия 1.238.1-2 |
Цена:
Рассчитать стоимостьПП 18.5 Плиты парапетные Серия 1.238.1-2.
| Параметр | Значение |
|---|---|
| длина | 1790 мм |
| ширина | 520 мм |
| высота | 80 мм |
| масса | 175 кг |
| нормативный документ | Серия 1.238.1-2 |
ПП 18.5 Плиты парапетные Серия 1.238.1-2.
