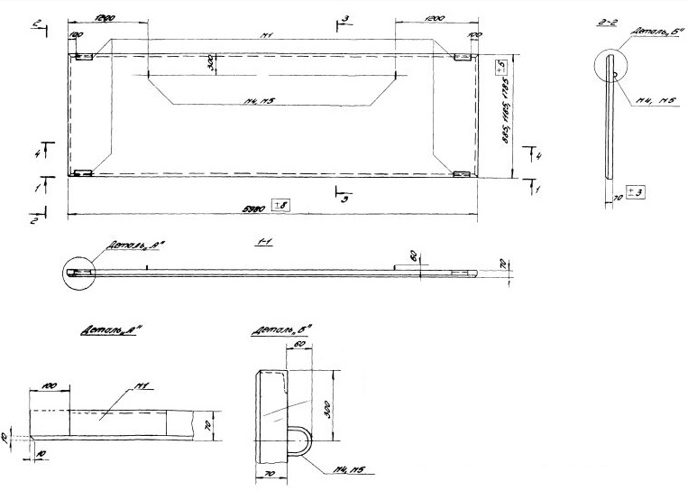
ПСЛН AIV-0,9-6-121
Характеристики изделия:
| Параметр | Значение |
|---|---|
| Длина | 5980 мм |
| Ширина | 70 мм |
| Высота | 885 мм |
| Масса | 710 кг |
| Нормативный документ | Серия 1.432-10 |
Цена:
Рассчитать стоимостьПредварительно напряженные панели из легких бетонов, армированные сталью класса A-IV, по Серии 1.432-10.
ПСЛН AIV-0,9-6-121 Рядовая панель.