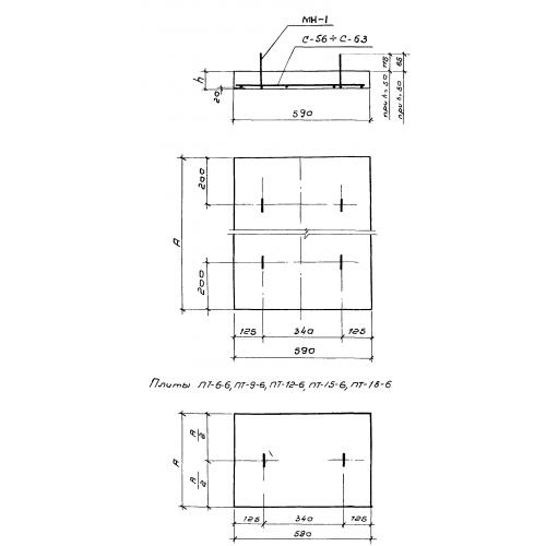
ПТ 12-6 Плиты покрытия лотков

Чертеж изделия:
Характеристики изделия:
ПараметрЗначение
длина590 мм
ширина1450 мм
высота80 мм
масса170 кг
нормативный документСерия 3.900.-3

ПТ 12-6 Плиты покрытия лотков по Серии 3.900.-3.